 |
Aufbau Ausbau
Massivhaus Futura
|
|
Wohnhaus mit 2 Vollgeschossen.
Bei einer 2-geschossigen Bauweise hat das Gebäude zwei Vollgeschosse,
die beide über die gleiche Grundfläche reichen. Ihre
Sicherheiten undQualitäts-GarantienDIN DEUTSCHE INDUSTRIE NORM
Wärmeschutz nach DIN 4108 spart Heizkosten. Auf
Wunsch mit Energiebilanz nach EnEV.Schallschutz nach DIN 4109, mind. Rw
= 55 dB!Brandschutz nach DIN 4102, nicht brennbar! Ein sicheres Massivhaus.
Diese Neuentwicklung auf Basis bewährter Bautechniken hat es in sich:
Beste Wärmedämmung von der Sohle bis zum Dach wird kombiniert
mit modernster Haustechnik. Alles anpassbar an Ihre individuellen Wünsche.
Neben dem verputzten Erd-geschoss setzt das Obergeschoss mit seiner hochwertigen
Faser-zement-Schalung einen modern- eleganten Akzent. |
Großes Haus, preiswert wohnen.
Gleich zwei Wohneinheiten sind in diesem Mehrgenerationen-Haus untergebracht.
Das Haus ist zwar eine Nummer größer, aber dieser Preis hal-biert
sich für jede Wohneinheit. Somit kann man preiswert nah beieinander
wohnen und sich gegenseitig helfen. Die Nutzung und Aufteilung bestimmen
Sie: Beim Modell Futura geben Sie den Ton an, denn der Grundriss und die
Nutzungsbereiche sind voll flexibel. |
Offen für die Zukunft.
Die zunächst zueinander offenen Wohneinheiten können zukünftig
auch vollständig voneinander getrennt werden. Zudem lässt sich
das massive 3IS Haus verändern und erweitern. Im 3IS Systembau können
Fenster und Türen einfach versetzt oder ganz geschlossen werden. Der
Massivbau hat einen weiteren, unschätzbaren Vorteil für Sie. Die
massive Außenwand trägt die Last des Daches. Innen können
Sie so Ihre Räume frei planen, Wände versetzen oder offen lassen
und sogar später noch verändern! |
| |
| "Von der Sole bis zum Dach" |
| |
|
|
|
|
|
|
|
|
|
|
|
|
|
|
| |
|
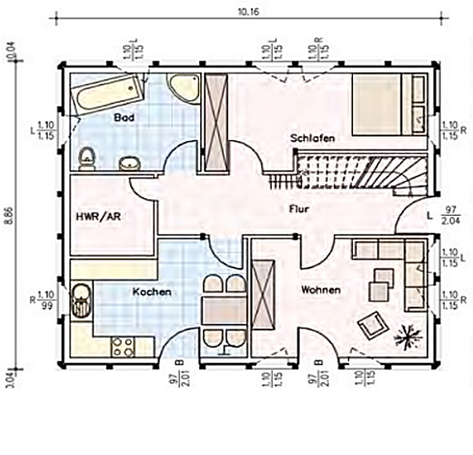
| Extra für Sie: Raumlösungen damit am Ende
alles passt. Maßstäbliche Einrichtungsvorschläge: |
|
|
|
Bildergalerie
Herstellung Bodenplatte
Ausbau Wärmedämmung
|